BL型棒銷聯軸器
BL型棒銷聯軸器的適用范圍適用于聯接兩同軸線的傳動軸系,具有一定的補償兩軸相對偏移和一般減震性能。工作環境溫度為-20º~+70ºC.不適用于對減震效果要求很高和對噪音需要控制的部位。
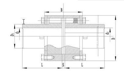
.jpg)

| BL型彈性棒銷齒式聯軸器基本參數和主要尺寸 mm |
| 型號 | 公稱扭矩 N.m | 許用 轉速 rpm | 孔徑直徑mm d1、d2 | 軸孔長度mm | D | S | B | 許用補償量 | 轉動 慣量 N.m2 |
質量kg |
|||||||
| Y型 | J1型 | 軸向 | 徑向 | 角向 | |||||||||||||
| L | L | mm | (º) | ||||||||||||||
| BL1 | 610 | 3800 | 25,28 | 55 | 65 | 145 | 5 | 66 | ±1.5 | 0.2 | 0º30¹ | 0.882 | 11 | ||||
| 30,32,35,38 | 60 | 80 | |||||||||||||||
| 40,42,45,48 | 70 | 110 | |||||||||||||||
| BL2 | 1500 | 3000 | 40,42,45,48,50,55 | 70-110 | 110 | 165 | 5 | 76 | ±1.5 | 0.2 | 0º30¹ | 1.96 | 18 | ||||
| 60 | 110-140 | 140 | |||||||||||||||
| BL3 | 3920 | 2400 | 50,55 | 70-110 | 110 | 190 | 5 | 86 | ±1.5 | 0.3 | 0º30¹ | 4.312 | 30 | ||||
| 60,65,70,75 | 110-140 | 140 | |||||||||||||||
| 80 | 125-170 | 170 | |||||||||||||||
| BL4 | 6174 | 2000 | 60,65,70,75 | 110-140 | 140 | 230 | 5 | 106 | ±1.5 | 0.3 | 0º30¹ | 9.702 | 42 | ||||
| 80,85,90 | 125-170 | 170 | |||||||||||||||
| BL5 | 9800 | 1680 | 70,75 | 110-140 | 140 | 270 | 5 | 116 | ±1.5 | 0.4 | 0º30¹ | 23.52 | 81 | ||||
| 80,85,90,95 | 110-200 | 180 | |||||||||||||||
| 100,110,120 | 172 | 210 | |||||||||||||||
| BL6 | 15680 | 1500 | 80,85,90,95 | 120-170 | 170 | 290 | 10 | 127 | ±2.5 | 0.4 | 0º30¹ | 31.36 | 101 | ||||
| 100,110,120 | 160-210 | 210 | |||||||||||||||
| 130 | 200-250 | 250 | |||||||||||||||
| BL7 | 24500 | 1270 | 90、95 | 140-170 | 170 | 350 | 10 | 147 | ±2.5 | 0.4 | 0º30¹ | 79.38 | 151 | ||||
| 100,110,120 | 160-210 | 210 | |||||||||||||||
| 130,140,150 | 200-250 | 250 | |||||||||||||||
| BL8 | 30870 | 1140 | 100,110,120 | 160-210 | 210 | 370 | 10 | 167 | ±2.5 | 0.6 | 0º30¹ | 123.52 | 206 | ||||
| 130,140,150 | 200-250 | 250 | |||||||||||||||
| 160,170 | 240-300 | 300 | |||||||||||||||
| BL9 | 39200 | 1000 | 110,120 | 160-210 | 210 | 400 | 10 | 167 | ±2.5 | 0.6 | 0º30¹ | 175.42 | 290 | ||||
| 130,140,150 | 200-250 | 250 | |||||||||||||||
| 160,170,180 | 240-300 | 300 | |||||||||||||||
| BL10 | 61740 | 850 | 130,140,150 | 200-250 | 250 | 470 | 10 | 177 | ±2.5 | 0.6 | 0º30¹ | 343 | 377 | ||||
| 160,170,180 | 240-300 | 300 | |||||||||||||||
| 190,200,210 | 280-350 | 350 | |||||||||||||||
| BL11 | 98000 | 750 | 150 | 200-250 | 250 | 520 | 10 | 201 | ±2.5 | 0.8 | 0º30¹ | 597.8 | 520 | ||||
| 160,170,180 | 240-300 | 300 | |||||||||||||||
| 190,200,210,220,230, 240,250 | 280-350 | 350 | |||||||||||||||
| BL12 | 122500 | 660 | 170,180 | 240-300 | 300 | 560 | 10 | 231 | ±2.5 | 0.8 | 0º30¹ | 989.8 | 660 | ||||
| 190,200,210,220,230, 240,250 | 280-350 | 350 | |||||||||||||||
| 260,270,280 | 320-420 | - | |||||||||||||||
| BL13 | 155800 | 600 | 190,200,210,220,230, 240,250 | 280-350 | 350 | 630 | 10 | 261 | ±2.5 | 1.0 | 0º30¹ | 1630.6 | 876 | ||||
| 260,270,280,290,300 | 320-420 | - | |||||||||||||||
| BL14 | 245000 | 540 | 210,220,230,240,250 260,270 | 280-350 | 350 | 690 | 10 | 285 | ±2.5 | 1.0 | 0º30¹ | 2675.4 | 1124 | ||||
| 280,290,300,310,320,330,340 | 350-420 | - | |||||||||||||||
| BL15 | 308700 | 480 | 230,240,250,260,270 280,290,300 | 320-350 | - | 750 | 10 | 315 | ±2.5 | 1.2 | 0º30¹ | 4410 | 1830 | ||||
| 310,320,330,340 350,360,370,380 | 420-480 | ||||||||||||||||
| BL16 | 392000 | 425 | 250,260,270,280,290,300,310,320,330,340 | 350-400 | - | 850 | 15 | 345 | ±5 | 1.2 | 0º30¹ | 7408.8 | 2370 | ||||
| 350,360,370,380 390,400,410,420 | 420-480 | ||||||||||||||||
| BL17 | 617400 | 380 | 280,290,300,310,320 330,340,350,360,370 380,390,400 | 400-450 | - | 930 | 15 | 369 | ±5 | 1.5 | 0º30¹ | 12475.4 | 3350 | ||||
| 410,420,430,440,450 460,470,480 | 480-560 | ||||||||||||||||
| BL18 | 980000 | 330 | 300,310,320,330,340 350,360,370,380,390 400 | 450-480 | - | 1000 | 15 | 389 | ±5 | 1.5 | 0º30¹ | 20139 | 4077 | ||||
| 410,420,430,440,450 460,470,480,490,500 580 | 530-560 | ||||||||||||||||
| BL19 | 1568000 | 300 | 350,360,370,380,390 400,410,420,430,440 | 480-560 | - | 1110 | 15 | 409 | ±5 | 1.5 | 0º30¹ | 40062.4 | 5690 | ||||
| 450,460,470,480,490 500,530,560,600 | 600-650 | ||||||||||||||||
泊頭市春華傳動機械有限公司生產聯軸器,減速機支架的研究,生產。我們各種設備齊全, 技術力量雄厚,生產各種類型聯軸器,產品主要有:各種聯軸器配件,膜片聯軸器,鼓形聯軸器,梅花彈性聯軸器,彈性聯軸器,齒式聯軸器,鏈條聯軸器,扭力聯軸器,脹緊聯結套,彈性柱銷聯軸器等。供國內許多機械行業。并且在聯軸器方面有著豐富的經驗,具有研發高新精產品和批量生產的優越條件及強大優勢,能滿足用戶的各種需求。